Fijnaart, Molenstraat 17















































- Transformatieobject
- 117 m² object
- 255 m² perceel
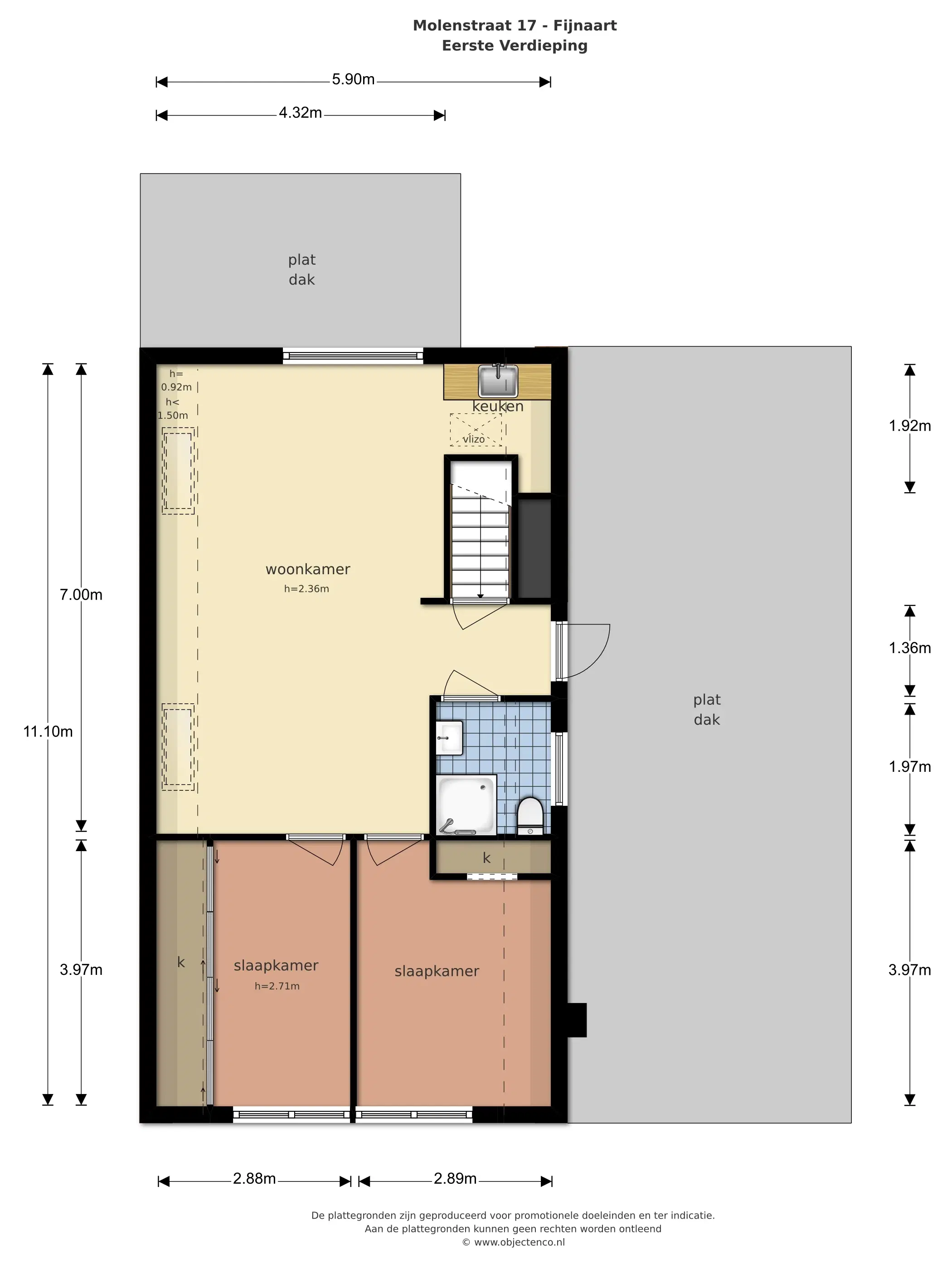
Horecapand met bovenwoning gelegen op uitstekende locatie in Fijnaart (ca. 5.820 inwoners, gemeente Moerdijk). Er is een mogelijkheid om het object aan te passen naar vier separate appartementen, echter dient hiervoor nog een ruimtelijk initiatief ingediend te worden bij de gemeente. In Fijnaart en zijn polderrijke omgeving zijn diverse voorzieningen zoals horeca, winkels, 2 supermarkten, 3 basisscholen, busverbindingen naar Roosendaal, Zevenbergen en Breda, sportverenigingen en een breed verenigingsleven. Er is een groot dorpshuis en een klein binnenzwembad. Om Fijnaart zijn in een straal van 5 tot 10 kilometer plaatsen zoals Oud Gastel, Zevenbergen en de buitenrand van Roosendaal. Het pand is ruim van opzet met een bedrijfs-/horeca gedeelte (45 m²) met aangrenzende ruimte (45 m²) en ruime keuken (27 m²). Het pand wordt aangeboden met bovenwoning. De woning heeft een ruime woonkamer met open keuken, een badkamer met toilet, wastafel en douchegelegenheid en 2 slaapkamers, waarvan een met kastenwand. Daarnaast bevinden zich onder het gehele pand in het souterrain nog diverse bergruimtes en is er een dames- en herentoilet met fonteintje. Al met al zijn hier vele exploitatiemogelijkheden mogelijk op het gebied van fast-service t/m restaurant. Bestemming: Momenteel heeft het object de bestemming Horeca. Conform informeel advies van de gemeente Moerdijk kan er worden gedacht aan de transformatie van het object naar 4 separate appartementen. Er is tot heden geen integrale principe-uitspraak gedaan door gemeente m.b.t. de realisatie van vier appartementen. Er dient nog een ruimtelijk initiatief te worden ingediend bij de gemeente. Kadastrale omschrijving: Het pand met een restaurant en een bovenwoning, ondergrond, tuin, erf en verder aanbehoren te Fijnaart aan de Molenstraat 17 (4793 ED), kadastraal bekend gemeente Fijnaart, sectie F, nummer 1349, groot twee are en vijfenvijftig centiare (2 a en 55 ca).
Over het object
- TypeTransformatieobject
- GroepCommercieel vastgoed
- Bouwjaar1927
- GebruikssituatieOnbekend
- Oppervlakte object117 m²
- Oppervlakte perceel255 m²
Bezichtigingen
Neem contact op met Vastgoed Veiling of WG Makelaars om een afspraak in te plannen voor een bezichtiging.
Over de veiling
- SoortVrijwillige veiling
- BiedmethodeOpbod en afslag
- Datum
- OrganisatorBOG Auctions
- InzetpremieTen laste koper
- ToewijzingRecht van gunning
- BelastingOverdrachtsbelasting
Op deze veiling zijn de AVVIVV 2013 en bijzondere veilingvoorwaarden van toepassing.
Gebruik het biedformulier om een onderhands bod uit te brengen.
Kosten
Houd, naast het veilingbedrag, rekening met de volgende kosten:
- + Inzetpremie ten laste van koper
- + Bijkomende kosten à 3.327,50 EUR
- + Overdrachtsbelasting
Dataroom
- Bijzondere veilingvoorwaarden.pdf
- AVVIVV 2013.pdf
- Kostenoverzicht.pdf
- Biedformulier.pdf
- Eigendomsinformatie - Fijnaart F 1349 (1)_Redacted.pdf
- ObjectCo - Meetrapport - Molenstraat 17 - Fijnaart.pdf
- Energielabel F Molenstraat 17 Horeca.pdf
- Energielabel G Molenstr 17 woning.pdf
- Uittreksel kadastrale kaart FIJNAART F 1349 (1).pdf
Notaris
- Notariskeuze koper
Makelaar
Voor vragen over deze verkoop kun je terecht bij:
WG Makelaars B.V. Voorstraat 28 4797 BG Willemstad
info@wgmakelaars.nl
Tel. +31 (0)168 - 47 70 77
In collegiale samenwerking met:
Vastgoed Veiling Overschiestraat 59 1062 XD Amsterdam
info@vastgoedveiling.nl
Tel. +31 (0)33 808 02 62