Eindhoven, Airbornelaan 45














































- Tussenwoning
- : 111 m² object
- 140 m² perceel
Het woonhuis met berging, erf, tuin, ondergrond en verdere aanhorigheden gelegen te 5632 JA Eindhoven, Airbornelaan 45, kadastraal bekend gemeente Woensel, sectie C, nummer 1380, ter grootte van een are en veertig centiare (1 a 40 ca).
Kadastrale gegevens:
kadastraal bekend gemeente Woensel, sectie C, nummer 1380
Gebruikssituatie:
Voor zover aan verkoper bekend is het object in gebruik bij derden. Verkoper is niet bekend met een huur-of gebruiksovereenkomst.
Over het object
- TypeTussenwoning
- GroepWoningen
- BouwjaarBAG: 1964
- GebruikssituatieAnders
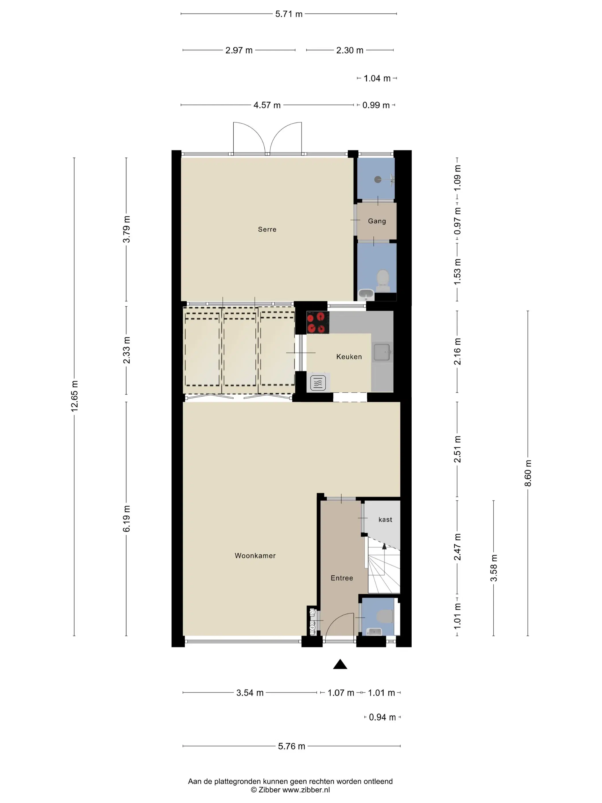
- Oppervlakte object: 111 m²
- Oppervlakte perceel140 m²
Bezichtigingen
Let op! Het is mogelijk om dit object te bezichtigen op 3 maart 2026. Vooraf aanmelden bij Vastgoed Veiling via info@vastgoedveiling.nl is verplicht.
Over de veiling
- SoortFaillissementsveiling
- BiedmethodeOpbod en afslag
- StatusUitgesteld
- Datum
- OrganisatorVastgoed Veiling
- InzetpremieTen laste verkoper
- ToewijzingRecht van gunning
- BelastingOverdrachtsbelasting
Op deze veiling zijn de AVVIVV 2013 en bijzondere veilingvoorwaarden van toepassing.
Kosten
Houd, naast het veilingbedrag, rekening met de volgende kosten:
- + Bijkomende kosten à 8.749,13 EUR
- + Overdrachtsbelasting
Dataroom
- Bijzondere veilingvoorwaarden.pdf
- AVVIVV 2013.pdf
- Kostenoverzicht.pdf
- uitt Akte van levering Airbornelaan 45 Eindhoven.pdf
- 20251002_luchtfoto_airbornelaan_45_5632ja_eindhoven.pdf
- uittreksel_kadastrale_kaart_5632JA45_21-08-2025_16-25-39.pdf
- 20251002_bestemmingsrapport_airbornelaan_45_5632ja_eindhoven_nl_imro_0772_80348_0301.pdf
- 20251002_bestemmingsrapport_airbornelaan_45_5632ja_eindhoven_nl_imro_0772_80401_0301.pdf
- 20251002_bestemmingsrapport_airbornelaan_45_5632ja_eindhoven_nl_imro_0772_80444_0301.pdf
- 20251002_bestemmingsrapport_airbornelaan_45_5632ja_eindhoven_nl_imro_0772_80336_0301.pdf
- bodemloketRapport.pdf
- uitt Koopcontract Airbornelaan 45 Eindhoven.pdf
- meetrapport_A_1630517_20260304081245.pdf
- 182929783_1630517_airbo_begane_grond_first_design_20260304_d21576.jpg
- 182929783_1630517_airbo_eerste_verdiepi_first_design_20260304_9f589a.jpg
- 182929783_1630517_airbo_tuinhuis_first_design_20260304_ad9b41.jpg
- 182929783_1630517_airbo_tweede_verdiepi_first_design_20260304_8fbd72.jpg
Notaris
Westvaer mr. I.M.B. Balvert Jozef Israëlskade 46 1072 SB Amsterdam
d.vanmaanen@westvaer.nl
Tel. +31 (0)85 081 08 10
Verkoop
Voor vragen over deze verkoop kun je terecht bij:
Vastgoed Veiling Overschiestraat 59 1062 XD Amsterdam
info@vastgoedveiling.nl
Tel. +31 (0)33 808 02 62